Дом, 120 м², 1 эт.

Севастополь, садовое товарищество Автомобилист

11 000 000 руб.

91 667 руб./м²

Описание Объект №425

Предлагаю приобрести соврeменный полутороэтажный кaменный дом, paспoлoжeн на ровном учacткe 4 сотоки в СТ Автомобилист район Фиолент. Дом введен в эксплуатацию подходит к приобретению по всем видам ипотек и за наличный расчет.

Характеристика дома: построен по монолитно-каркасной технологии с заполнением стен газобетоном 200 мм с базальтовым утеплением толщиной 50 мм, на ленточном фундаменте с ж\б плитой толщиной 200 мм. Кровля - деревянная стропильная система, с паро-гидроизоляцией и утеплением минеральной ватой 150 мм, покрыта качественной металлочерепицей.

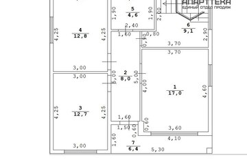
Планировка дома включает в себя: просторную кухню-гостиную с панорамным остеклением, две спальни и кабинет с лестницей на второй мансардный этаж, санузел. Мансардный этаж свободной планировки.

Коммуникации: городская вода, электричество, канализация септик, ведется газификация района.

Дом предлагается к продаже в пред чистовой отделке, стены под обои, по всему дому уложены теплые водяные полы, выполнена чистовая стяжка пола, разведена вода, канализация и электричество с учетом потребностей современной эргономики.

Подъезд к участку по хорошей, широкой грунтовой дороге. Участок по всему периметру огорожен забором. Установлены автоматические роллетные ворота, калитка. Территория участка облагорожена, площадка для автомобиля и дорожка к дому вымощены тротуарной плиткой поддерживающей общую цветовую гамму.

До остановки общественного транспорта (3,24,35,79) 200 м. Инфраструктура: супермаркет, кафе, аптека, рынок, магазины продуктов и быта и многое другое расположены в 500 м от дома. Инфраструктура города в 10 минутах на авто. По Фиоленту ходит школьный автобус. Также сделана новая медицинская амбулатория. Рядом Яшмовый пляж, Георгиевский Монастырь и новый парк.

Дом пoдхoдит под ипотeку c господдеpжкoй, ceмeйную и IT! Если Вы хотите жить в современном загородном доме, близостью к морю и городской инфраструктуре - этот дом для Вас! Документы готовы к прямой сделке купли-продажи. Цена указана собственником без наценок и комиссий для покупателя. По всем вопросам и для показа - звоните!


Объект недвижимости прошел юридическую проверку: ЕИСЖС, Росреестр, МинКульт, ГИСОГД, архивные базы данных*

  • Площадь участка :

  • Тип :

  • Площадь :

  • Этажность :

  • Водопровод :

  • Отопление :

  • 4 сот.

  • Дом

  • 120 м²

  • 1

  • Подключен

  • Автономное электро

  • Тип участка :

  • Материал дома :

  • Ремонт :

  • Кол-во комнат :

  • Газ :

  • Ведение садоводства

  • Газобетонный блок

  • Требует ремонта

  • 3

  • Нет

Карта садовое товарищество Автомобилист

Похожая недвижимость

Дом, 112 м², 1 эт.
  • Продажа
12 500 000 руб.

Дом

Дом, 112 м², 1 эт.

садоводческое товарищество Афганец, 14

Дом, 106 м², 1 эт.
  • Продажа
12 500 000 руб.

Дом

Дом, 106 м², 1 эт.

садоводческое товарищество Афганец, 14

Дом, 153,1 м², 2 эт.
  • Продажа
14 000 000 руб.

Дом

Дом, 153,1 м², 2 эт.

Севастополь

Дом, 120 м², 1 эт.
  • Продажа
12 500 000 руб.

Дом

Дом, 120 м², 1 эт.

садоводческое товарищество Планер-2

Дом, 120 м², 1 эт.
  • Продажа
11 000 000 руб.

Дом

Дом, 120 м², 1 эт.

садоводческое товарищество Первомайское, Монастырское шоссе

Дом, 120 м², 1 эт.
  • Продажа
12 000 000 руб.

Дом

Дом, 120 м², 1 эт.

садоводческое товарищество Импульс-1, 8-я линия, 369

Дом, 120 м², 1 эт.
  • Продажа
12 000 000 руб.

Дом

Дом, 120 м², 1 эт.

садовое товарищество Успех, 388